刈谷市小垣江町分譲

全区画45坪超のゆとり、暮らし広がる全13邸の街【小垣江分譲】※完売しました

全区画45坪超のゆとり、暮らし広がる全13邸の街【小垣江分譲】※完売しました

\土地はすべて45坪以上!間取りの自由が広がる、ゆとりの全13区画/
通勤・通学に便利な小垣江駅徒歩圏。子育てにも嬉しい住環境が整う、刈谷市小垣江町に全13区画の新しい街が誕生しました。平屋や中庭付きプラン、2世帯住宅など、理想の住まいを自由設計で叶えませんか?

販売価格:1,910万円~2,320万円

土地面積:160.09㎡(48.42坪)~170.79㎡(51.66坪)

■ すべての区画が45坪以上。自由設計にぴったりの整形地

ほとんどの区画が整った形状の整形地で、敷地を無駄なく活かせるレイアウト。開放感ある間取りや広めの庭、ビルトインガレージなど、住まいのアイデアをそのままカタチにできます。

■ 3台並列も可能な約5mの新設道路

街区内は新設道路がしっかり整備され、約5メートルの幅員で車の出入りも安心。来客用スペースを含めた3台分の並列駐車もプラン可能です。

■ 教育施設や生活利便施設が身近な子育て安心立地

名鉄三河線「小垣江」駅まで徒歩圏で、名古屋方面へのアクセスも快適。
徒歩圏内には公園やスーパー、保育園、幼児園、小・中学校が揃い、子育て世代にとって理想的な住環境です。

土地の広さを活かして、平屋・中庭付き住宅・2世帯住宅なども自由にプランニング可能。

ライフスタイルに寄り添う、あなただけの住まいを一緒に叶えませんか?

DETAILS

分譲地情報

敷地面積
160.09㎡(48.42坪)~170.79㎡(51.66坪)
価格
1,910万円~2,320万円

※仲介手数料不要
※完成宅地分譲

※販売中物件につき、成約済の際はご了承下さい。

5区画 参考プラン【長期優良住宅・耐震等級3】

視線を気にせず、光と家事ラクに包まれる家。

視線をカットしたコの字型のリビングテラスは、外からの目を気にせず過ごせるプライベート空間。18帖のLDKはテラスから差し込む陽光で一日中明るく、開放感にあふれています。

テラスは約8帖弱の広さで全面ウッドデッキ仕様。リビングとつながることで、朝のコーヒータイムから家族や友人との食事まで、暮らしを豊かにするアウトドアリビングとして活用できます。

キッチンはリビングを見渡せる設計で、家族の会話が自然に生まれる配置に。さらに共働き家族を想定した「家事ラク動線」も魅力。洗う→干す→たたむ→しまうが隣り合わせのスペースで完結し、キッチンからもアクセスしやすい位置にあるため、忙しい毎日を大きく時短できます。

のびやかでくつろぎに満ちた住まいが、家族の暮らしを支えます。

販売価格

4,390万円(税込)

( 土地+建物+建物付帯工事費+消費税 )

土地価格

1,910万円(5区画)

建物価格

2,480万円(税込)

敷地面積

170.79㎡(51.66坪)

建物面積

110.54㎡(33.43坪)

床面積

1階:59.62㎡
2階:50.92㎡

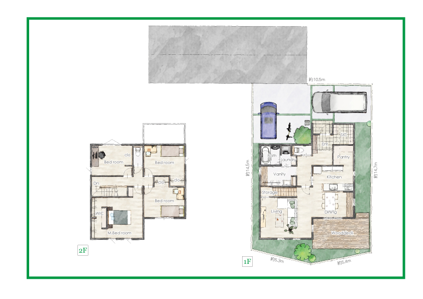
12区画 参考プラン【長期優良住宅・耐震等級3】

家事ラク動線と4つの居室でゆとりある暮らしを叶える家

1階はキッチンからパントリー、洗面室、リビングへとつながるスムーズな回遊動線で、毎日の家事を効率的にサポート。
南側のリビング・ダイニングにはウッドデッキが続き、家族が自然と集まる開放的な空間を演出します。

2階には4つの居室を確保し、子ども部屋や主寝室、在宅ワークスペースなどライフスタイルに合わせた使い方が可能。家族の成長に柔軟に対応できる、暮らしやすさを追求したプランです。

販売価格

4,550万円(税込)

( 土地+建物+建物付帯工事費+消費税 )

土地価格

2,030万円(12区画)

建物価格

2,520万円(税込)

敷地面積

160.41㎡(48.52坪)

建物面積

125.07㎡(38.07坪)

床面積

1階:65.41㎡
2階:60.45㎡

住所
刈谷市小垣江町荒畑37-1他
名鉄三河線「小垣江」駅まで徒歩13分(1000m)

名鉄三河線「小垣江」駅まで徒歩13分(1000m)

慈友乳児園まで徒歩10分(800m)

慈友乳児園まで徒歩10分(800m)

おがきえ保育園まで徒歩20分(1600m)

おがきえ保育園まで徒歩20分(1600m)

小垣江幼児園まで徒歩11分(850m)

小垣江幼児園まで徒歩11分(850m)

小垣江東幼児園まで徒歩17分(1300m)

小垣江東幼児園まで徒歩17分(1300m)

小垣江東小学校まで徒歩8分(600m)

小垣江東小学校まで徒歩8分(600m)

依差美中学校まで徒歩18分(1400m)

依差美中学校まで徒歩18分(1400m)

小垣江にしおクリニックまで徒歩7分(500m)

小垣江にしおクリニックまで徒歩7分(500m)

刈谷記念病院まで徒歩18分(1400m)

刈谷記念病院まで徒歩18分(1400m)

ヤオスズ アップティー店まで徒歩5分(350m)

ヤオスズ アップティー店まで徒歩5分(350m)

DCM 刈谷小垣江店まで徒歩13分(1000m)

DCM 刈谷小垣江店まで徒歩13分(1000m)

ゲンキー吉浜八幡店まで徒歩12分(900m)

ゲンキー吉浜八幡店まで徒歩12分(900m)

伊勢山公園まで徒歩4分(280m)

伊勢山公園まで徒歩4分(280m)

小垣江公園まで徒歩9分(650m)

小垣江公園まで徒歩9分(650m)

小垣江郵便局まで徒歩15分(1200m)

小垣江郵便局まで徒歩15分(1200m)

所在地
刈谷市小垣江町荒畑37-1他
交通
名鉄三河線「小垣江」駅 徒歩13分
総区画数
13区画
販売区画数
2区画
都市計画
市街化区域
用途地域
第一種中高層住居専用地域
地目
宅地・畑・公衆用道路
土地権利
所有権
建ぺい率
60%
容積率
150%
道路幅員
公道 約5メートル
設備
電気、公営水道、公共下水、都市ガス
その他
上下水道引込負担金:1区画/99,000円(税込)
取引形態
販売代理 ※仲介手数料不要
建築条件

大切なご家族を守るために 太陽ハウジングの家づくり

太陽ハウジングでは、土地選びから家づくり、引き渡し後の確定申告サポートやアフターサービスまで、一貫したサポート体制をご用意しています。私たちの最大の強みは「信頼」と「サポート力」。 お客さまが長期にわたり安心して暮らせる住まいを提供し、末永いお付き合いを大切にしています。

01

信頼関係を基盤にした家づくり

お客さまのどんな小さなご要望でも気軽に相談できるアットホームな雰囲気を大切にし、一人ひとりの夢やライフスタイルに寄り添います。この姿勢を通じて、お客さまとの信頼関係を築いています。

  • 気軽に相談できる温かいサポート
  • 家づくりの過程を楽しめるアットホームな環境
02

豊富な土地情報と一貫サポート

地域に根ざした豊富な土地情報を提供し、土地選びから設計、施工、アフターサービスまで、お客さまのニーズに応じた一貫したサポートを行っています。

  • 豊富な地域の土地情報
  • 土地選びからアフターサービスまでの一貫サポート
03

完全自由設計と時間をかけた家づくり

完全自由設計を採用しており、お客さまの理想の家を実現できる柔軟なプランを提案しています。また、急がされることなく、時間に余裕を持って打ち合わせを進められるため、家づくりそのものを楽しみながら、納得いくまで進めていただけます。

  • オーダーメイドの自由設計
  • 時間に余裕を持った打ち合わせ
04

地盤改良無料サポート

予算管理で予測が難しい追加費用のうち、地盤改良費を太陽ハウジングが負担します。これにより、予算オーバーのリスクを軽減し、お客さまに安心して家づくりを進めていただけます。

  • 地盤改良費の会社負担による安心感
  • 20年の地盤保証付き
05

充実した保証とアフターサービス

50年の長期点検と最長50年の保証を備え、さらに第三者機関による品質検査を行っています。専任スタッフがトラブルにも迅速に対応し、お客さまが長期にわたり安心して暮らせるようサポートします。

  • 50年の長期点検と最長50年保証、建物品質保証
  • 専任担当による迅速な対応
06

ファンサイトを通じた長期的サポート

オーナーさま向けのファンサイトを通じて、ご入居後も情報交換やイベントを行い、お客さまと継続的な関係を築いています。

  • ファンサイトを活用した長期的なサポート
  • イベントや情報交換を通じたアフターケア

太陽ハウジングは、信頼とサポート力を基に、お客さまの理想を実現する注文住宅づくりを行っています。豊富な土地情報、自由設計、安心の予算管理、引き渡し後の確定申告サポート、充実した保証・アフターサービスを通じて、お客さまが長期にわたり安心して暮らせる住まいをお届けしています。

    来場時間必須
    第一希望
    第二希望
    お名前必須
    お電話任意
    ご住所任意
    Email必須
    Email確認用必須
    参加人数必須
    大人
    子供
    ご質問など任意

    こちらのフォームで入力された内容は資料の送付、電子メール送信・電話連絡などの目的で利用いたします。
    当社のプライバシーポリシーはこちら

      資料お届け方法必須
      お名前必須
      お電話任意
      ご住所必須
      Email必須
      Email確認用必須
      ご質問など任意

      こちらのフォームで入力された内容は資料の送付、電子メール送信・電話連絡などの目的で利用いたします。
      当社のプライバシーポリシーはこちら