EVENT
イベント・お知らせ
全区画45坪超のゆとり、暮らし広がる全13邸の街【小垣江町分譲】
■ すべての区画が45坪以上。自由設計にぴったりの整形地
ほとんどの区画が整った形状の整形地で、敷地を無駄なく活かせるレイアウト。開放感ある間取りや広めの庭、ビルトインガレージなど、住まいのアイデアをそのままカタチにできます。
■ 3台並列も可能な約5mの新設道路
街区内は新設道路がしっかり整備され、約5メートルの幅員で車の出入りも安心。来客用スペースを含めた3台分の並列駐車もプラン可能です。
■ 教育施設や生活利便施設が身近な子育て安心立地
名鉄三河線「小垣江」駅まで徒歩圏で、名古屋方面へのアクセスも快適。
徒歩圏内には公園やスーパー、保育園、幼児園、小・中学校が揃い、子育て世代にとって理想的な住環境です。
土地の広さを活かして、平屋・中庭付き住宅・2世帯住宅なども自由にプランニング可能。
ライフスタイルに寄り添う、あなただけの住まいを一緒に叶えませんか?

▼区画割図
敷地面積:160.09㎡(48.42坪)~170.79㎡(51.66坪)
価格:1,910万円~2,320万円

※販売中物件につき、成約済の際はご了承下さい。
▼参考プラン
5区画 参考プラン【長期優良住宅・耐震等級3】
視線を気にせず、光と家事ラクに包まれる家。
建物価格:2,480万円(税込)
建物面積:110.54㎡(33.43坪)


視線をカットしたコの字型のリビングテラスは、外からの目を気にせず過ごせるプライベート空間。18帖のLDKはテラスから差し込む陽光で一日中明るく、開放感にあふれています。
テラスは約8帖弱の広さで全面ウッドデッキ仕様。リビングとつながることで、朝のコーヒータイムから家族や友人との食事まで、暮らしを豊かにするアウトドアリビングとして活用できます。
キッチンはリビングを見渡せる設計で、家族の会話が自然に生まれる配置に。さらに共働き家族を想定した「家事ラク動線」も魅力。洗う→干す→たたむ→しまうが隣り合わせのスペースで完結し、キッチンからもアクセスしやすい位置にあるため、忙しい毎日を大きく時短できます。
のびやかでくつろぎに満ちた住まいが、家族の暮らしを支えます。
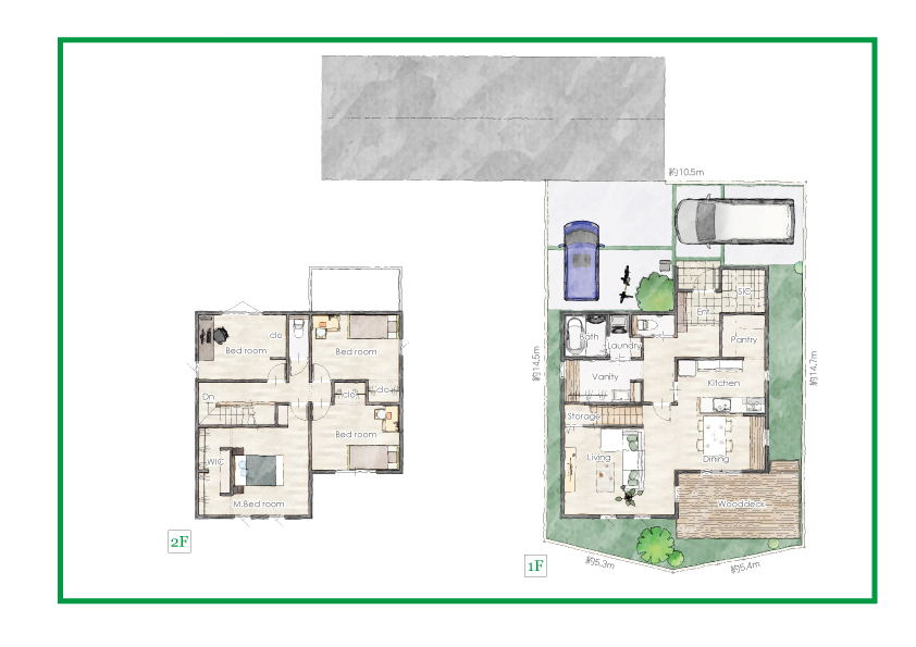
12区画 参考プラン【長期優良住宅・耐震等級3】
家事ラク動線と4つの居室でゆとりある暮らしを叶える家
建物価格:2,520万円(税込)
建物面積:125.07㎡(38.07坪)


1階はキッチンからパントリー、洗面室、リビングへとつながるスムーズな回遊動線で、毎日の家事を効率的にサポート。
南側のリビング・ダイニングにはウッドデッキが続き、家族が自然と集まる開放的な空間を演出します。
2階には4つの居室を確保し、子ども部屋や主寝室、在宅ワークスペースなどライフスタイルに合わせた使い方が可能。家族の成長に柔軟に対応できる、暮らしやすさを追求したプランです。
▼周辺環境
駅:名鉄三河線「小垣江」駅・・・徒歩13分(1000m)
幼稚園・保育園:慈友乳児園・・・徒歩10分(800m) 小垣江幼児園・・・徒歩11分(850m) おがきえ保育園・・・徒歩20分(1600m)
小学校:小垣江東小学校・・・徒歩8分(600m)
中学校:依佐美中学校・・・徒歩18分(1400m)
スーパー:ヤオスズ アップティー店・・・徒歩5分(350m)
ドラッグストア:ゲンキー吉浜八幡店・・・徒歩12分(900m)
ホームセンター:DCM 刈谷小垣江店・・・徒歩13分(1000m)
病院:小垣江にしおクリニック・・・徒歩7分(500m) 刈谷記念病院・・・徒歩18分(1400m)
郵便局:小垣江郵便局・・・徒歩15分(1200m)
銀行:碧海信用金庫 刈谷南支店・・・徒歩4分(270m)
公園:伊勢山公園・・・徒歩4分(280m) 小垣江公園:徒歩9分(650m)
イベント概要
- 日程
- 11月1日(土)~30日(日)
- 時間
- 9:00〜18:00
- 場所
- 刈谷市小垣江町荒畑37-1他
現地ご案内希望の方は、下記予約フォームよりお問い合わせください。

